つむぐ豊かさ
つむぐ豊かさ
つむぐ豊かさ
つむぐ豊かさ
つむぐ豊かさ

自分のライフスタイルで選ぶ住まいのカタチ。

03

MUKU NORTH STYLE

無垢ノーススタイル

北側道路の敷地の特徴を魅力として最大限引き出す為に生まれた家

無垢ノーススタイル

無垢スタイルの『無垢ノーススタイル』は、北側道路の敷地専用の注文住宅です。南道路や角地などに比べ一般的に割安な土地に、その特徴を個性として捉え魅力的なプランをご用意いたしました。リビングを2階に配置することで開放的かつプライバシーが守られる暮らしやすい間取りを実現しました。個性的な外観デザインに開放的な室内空間。多くの方の解決策になるであろうアイデアの詰まった家づくりです。

MUKUSTYLE
VIRTUAL TOWN

  • 常に暖かな日差しが降り注ぐ2階リビング

    LIVING

    MUKU BOX / 01

    常に暖かな日差しが降り注ぐ2階リビング

    無垢ノーススタイルは、シンプルながらもリビングの在り方にこだわりました。2階に設計されたリビングは、住宅密集地でも光を取り込みやすく、普段過ごす団欒の場で良好な眺望を得ることができます。また、外からの視線を避けやすくプライバシーが確保されるので、周囲を気にすることなく家族みんなでプライベートな時間をお寛ぎいただけます。

  • 贅沢なプライベート空間が広がる2階バルコニー

    2F BALCONY

    MUKU BOX / 02

    贅沢なプライベート空間が広がる2階バルコニー

    リビングとひと続きになっている2階のバルコニーは、人目を気にすることなくあなただけの非日常の時間を満喫することができます。ご家族やご友人とのパーティーの場として、お子様やペットの遊び場として、または夜空をゆったりと眺めることができるリラックススペースとして。多様なシーンで活躍するこのバルコニーで、かけがえのない素敵な時間を過ごしてみませんか?

  • 間仕切りで2部屋にもできるフレキシブルな洋室

    MULTIPURPOSE ROOM

    MUKU BOX / 03

    間仕切りで2部屋にもできるフレキシブルな洋室

    9帖の広々とした洋室は、奥行きを持たせているので、間仕切りなどで2部屋に分けることも可能です。例えばお子様の成長に合わせて形を変えることができる子供部屋としてご活用いただけます。その他、様々な用途に合わせて自由自在に使うことができるので、便利なスペースになること間違いなしです。

MUKU BOX
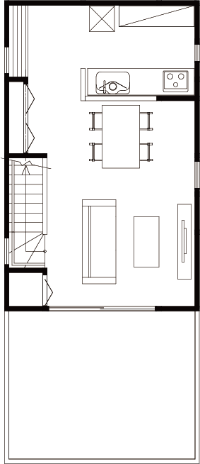
FLOOR PLAN

無垢ボックスの間取りは、上記以外にも土地の広さに合わせた間取りバリエーションをご用意しております。無垢ボックスを詳しく知りたい方は、Life style houseカタログセットをご請求ください。

MUKU BOX
PRICE & SPEC

本体参考価格18,981,000税込

上記は25坪の場合の価格となります。※地盤調査・仮設費用・屋外立水栓工事・屋外給排水工事・雨水排水工事・下水道接続工事・屋外電気配線工事・地盤補強工事(地盤調査結果により)・土地購入関連費用・門併工事・家具電化製品・その他諸経費などは本体価格には含まれません。建築地の諸条件および建築時期により別途費用が発生する場合があります。

  • MUKU BOX
  • MUKU FAMILIA
  • MUKU GREEN GAUGE
  • MUKU SIMPLE STYLE
  • MUKU NORTH STYLE
  • MUKU PASSIVE HOUSE
  • MUKU SKIP×2 HOUSE
  • MUKU SUNPATIO
  • MUKU SURFERS STYLE
  • MUKU GRAND

ライフスタイルハウスのカタログ
セットを無料でプレゼント

セレクト型注文住宅『ライフスタイルハウス』のプランバリエーションや価格を詳しく知りたい方、無垢スタイルの家づくりを詳しく知りたい方は無垢スタイル建築設計のカタログ・資料をお問い合わせフォームよりご請求ください。

Contact

各種お問い合わせ