つむぐ豊かさ
つむぐ豊かさ
つむぐ豊かさ
つむぐ豊かさ
つむぐ豊かさ

自分のライフスタイルで選ぶ住まいのカタチ。

01

MUKU BOX

無垢ボックス

オーガニックなアウトドアライフを満喫する開放的な家

無垢ボックス

無垢スタイルの『無垢ボックス』は、家庭菜園を楽しむために生まれた注文住宅です。広々としたウッドデッキのついたプラン。天気の良い日は第2のダイニングとして食事がとれる広さです。外と一体になる開放的なリビングダイニングで食事しやすいカウンターキッチン。庭で採れた野菜を調理して食べる。コンポストで自家製堆肥をつくり、食物を育てて収穫し食べることを通じて子どもにいのちの大切さを伝えることができます。

MUKUSTYLE
VIRTUAL TOWN

  • 吹き抜けと大きな窓で圧倒的な開放感のあるリビング

    LIVING

    MUKU BOX / 01

    吹き抜けと大きな窓で圧倒的な開放感のあるリビング

    リビング上部は吹き抜けになっており、その吹き抜け2階部分には大きな窓が設けられ、リビングで寛ぐ家族には暖かな光が降り注ぎます。大空間で過ごす時間はとても有意義な時間となることでしょう。

  • 室内干しもできる便利な2階ホール

    2F HALL

    MUKU BOX / 02

    室内干しもできる便利な2階ホール

    階段を上がってベランダを挟んだ場所に、広々とした2階ホールを設けました。ベランダ側の日差しの直射を利用して室内干しも可能です。また、広さを活かしてパブリックなワークスペースとしても活用できます。

  • アウトドアライフを叶えるバルコニー

    BALCONY

    MUKU BOX / 03

    アウトドアライフを叶えるバルコニー

    庭に突き出た1階のウッドデッキバルコニーは、アウトドアリビングとしても使える万能のスペースとなります。庭で家庭菜園をつくることでプライベートなエクステリアライフを楽しむことができます。

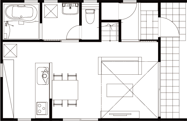
MUKU BOX
FLOOR PLAN

無垢ボックスの間取りは、上記以外にも土地の広さに合わせた間取りバリエーションをご用意しております。無垢ボックスを詳しく知りたい方は、Life style houseカタログセットをご請求ください。

MUKU BOX
PRICE & SPEC

本体参考価格18,136,000税込

上記は25坪の場合の価格となります。※地盤調査・仮設費用・屋外立水栓工事・屋外給排水工事・雨水排水工事・下水道接続工事・屋外電気配線工事・地盤補強工事(地盤調査結果により)・土地購入関連費用・門併工事・家具電化製品・その他諸経費などは本体価格には含まれません。建築地の諸条件および建築時期により別途費用が発生する場合があります。

  • MUKU BOX
  • MUKU FAMILIA
  • MUKU GREEN GAUGE
  • MUKU SIMPLE STYLE
  • MUKU NORTH STYLE
  • MUKU PASSIVE HOUSE
  • MUKU SKIP×2 HOUSE
  • MUKU SUNPATIO
  • MUKU SURFERS STYLE
  • MUKU GRAND

ライフスタイルハウスのカタログ
セットを無料でプレゼント

セレクト型注文住宅『ライフスタイルハウス』のプランバリエーションや価格を詳しく知りたい方、無垢スタイルの家づくりを詳しく知りたい方は無垢スタイル建築設計のカタログ・資料をお問い合わせフォームよりご請求ください。

Contact

各種お問い合わせ