つむぐ豊かさ
つむぐ豊かさ
つむぐ豊かさ
つむぐ豊かさ
つむぐ豊かさ

自分のライフスタイルで選ぶ住まいのカタチ。

05

MUKU SKIP×2 HOUSE

無垢スキップスキップハウス

段差が生み出すラウンジや収納、楽しさと利便性を兼ね備えた家

無垢スキップスキップハウス

無垢スタイルの『無垢スキップスキップハウス』は、段差をつくることで立体的な開放感のある空間が生まれ、収納や趣味のスペースなどを確保した注文住宅です。子供の玩具や季節の物、ご夫婦の趣味がいっぱいで収納もいっぱい欲しいというアクティブな方の為に生まれました。高さで空間を仕切る遊び心と利便性を兼ね備えたバラエティ溢れる軽快なプランをご提案いたします。

MUKUSTYLE
VIRTUAL TOWN

  • 1階と2階の間にある蔵のような収納

    MEZZANINE FLOOR

    MUKU BOX / 01

    1階と2階の間にある蔵のような収納

    無垢スキップスキップハウスは、中2階に広々とした蔵収納があることが大きな特徴であり、魅力の一つです。何でも収納できてしまうこのスペースに、普段は使わない趣味のものや季節ものを収納しておくことで、毎日過ごすリビングなどの他のお部屋をすっきりと自由な空間にすることができます。

  • 天井高く、幅広々の大開放のリビング

    LIVING

    MUKU BOX / 02

    天井高く、幅広々の大開放のリビング

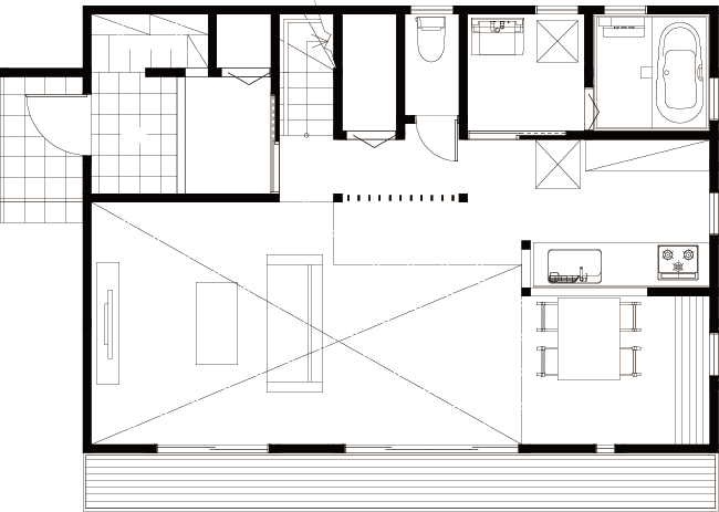
    23.6畳の広さを持つリビングは、中2階の存在のおかげで天井も高さを出すことが可能となり、とびきり明るく開放的な空間です。圧迫感を解消し、リビングで過ごす家族が伸び伸びと寛ぐことができます。キッチン・浴室・トイレ・収納・テラス・階段など、全てこのリビングからすぐにアクセスできるので効率的な生活動線を確保することができます。

  • 広々リビングから繋がるテラス

    BALCONY

    MUKU BOX / 03

    広々リビングから繋がるテラス

    リビングの幅と同じテラスを採用しました。テラスとリビングが一体となることで、更に明るく開放的な空間となります。また、直線的でシンプルな動線にもなるので、お洗濯などの家事もラクラク、スピーディー。お家の中にいながら、屋外でのBBQやお子様が遊ぶ様子を見守ることができるのも安心です。

MUKU BOX
FLOOR PLAN

無垢ボックスの間取りは、上記以外にも土地の広さに合わせた間取りバリエーションをご用意しております。無垢ボックスを詳しく知りたい方は、Life style houseカタログセットをご請求ください。

MUKU BOX
PRICE & SPEC

本体参考価格18,626,000税込

上記は25坪の場合の価格となります。※地盤調査・仮設費用・屋外立水栓工事・屋外給排水工事・雨水排水工事・下水道接続工事・屋外電気配線工事・地盤補強工事(地盤調査結果により)・土地購入関連費用・門併工事・家具電化製品・その他諸経費などは本体価格には含まれません。建築地の諸条件および建築時期により別途費用が発生する場合があります。

  • MUKU BOX
  • MUKU FAMILIA
  • MUKU GREEN GAUGE
  • MUKU SIMPLE STYLE
  • MUKU NORTH STYLE
  • MUKU PASSIVE HOUSE
  • MUKU SKIP×2 HOUSE
  • MUKU SUNPATIO
  • MUKU SURFERS STYLE
  • MUKU GRAND

ライフスタイルハウスのカタログ
セットを無料でプレゼント

セレクト型注文住宅『ライフスタイルハウス』のプランバリエーションや価格を詳しく知りたい方、無垢スタイルの家づくりを詳しく知りたい方は無垢スタイル建築設計のカタログ・資料をお問い合わせフォームよりご請求ください。

Contact

各種お問い合わせ