つむぐ豊かさ
つむぐ豊かさ
つむぐ豊かさ
つむぐ豊かさ
つむぐ豊かさ

自分のライフスタイルで選ぶ住まいのカタチ。

06

MUKU PASSIVE HOUSE

無垢パッシヴハウス

太陽、風、自然の力を効率的にダイレクトに活かす地球と共存する家

無垢パッシヴハウス

無垢スタイルの『無垢パッシヴハウス』は、エアコンよりも、窓からそよぐ風やお日様の暖かさが好きという自然派ライフスタイルの方の為に生まれたセミオーダー注文住宅です。季節による陽の高さや角度を考慮し、吹抜けを通して室内空間の空気の循環を自然と行えるプランです。日本人に生まれたことの喜びを味わえる家とも言えます。四季の移ろいを楽しみ、自然の恩恵を存分に感じる、まさに地球と共生する暮らしが実現します。

MUKUSTYLE
VIRTUAL TOWN

  • 大きな吹き抜けのある開放的なリビング

    LIVING

    MUKU BOX / 01

    大きな吹き抜けのある開放的なリビング

    吹き抜けの最大の魅力といえば、天井を高くとれる開放感と、太陽の光がたっぷりと入る明るさ。2階の大きな窓から降り注ぐ光が、優しくリビングを包み込みます。 極上の空間とも言える理想を叶えたリビングで、家族がのびのびと過ごすことができます。また、リビングとひと続きの畳コーナーでは日常的に和の風情を感じることができます。

  • 吹き抜けの最大の魅力といえば、天井を高くとれる開放感と、太陽の光がたっぷりと入る明るさ。2階の大きな窓から降り注ぐ光が、優しくリビングを包み込みます。 極上の空間とも言える理想を叶えたリビングで、家族がのびのびと過ごすことができます。また、リビングとひと続きの畳コーナーでは日常的に和の風情を感じることができます。

    2F HALL

    MUKU BOX / 02

    吹き抜けの最大の魅力といえば、天井を高くとれる開放感と、太陽の光がたっぷりと入る明るさ。2階の大きな窓から降り注ぐ光が、優しくリビングを包み込みます。 極上の空間とも言える理想を叶えたリビングで、家族がのびのびと過ごすことができます。また、リビングとひと続きの畳コーナーでは日常的に和の風情を感じることができます。

    大きな吹き抜けは2階のホールまでをも一つの空間として捉えることができます。1階と2階の間でも、すぐに声をかけあって家族の顔を見ることができるので、コミュニケーションも活発に。家全体が一体となる住まいでは、2階ホールもフリースペースとして自由に活用することができます。

  • 回遊性を利用したウォークインクローゼット

    WALK IN CLOSET

    MUKU BOX / 03

    回遊性を利用したウォークインクローゼット

    吹き抜けを回遊できるような動線を利用し、2階のどの部屋からもアクセスしやすい位置に大容量のウォークインクローゼットを設けました。ドアをなくし、幅の広い窓を設置することで、自然光の入りやすい明るい環境で優雅にお洋服を選ぶことができます。毎日の身支度も楽しくなること間違いなしです。

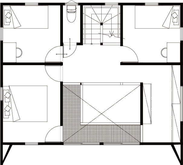
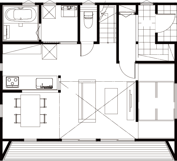
MUKU BOX
FLOOR PLAN

無垢ボックスの間取りは、上記以外にも土地の広さに合わせた間取りバリエーションをご用意しております。無垢ボックスを詳しく知りたい方は、Life style houseカタログセットをご請求ください。

MUKU BOX
PRICE & SPEC

本体参考価格17,703,000税込

上記は25坪の場合の価格となります。※地盤調査・仮設費用・屋外立水栓工事・屋外給排水工事・雨水排水工事・下水道接続工事・屋外電気配線工事・地盤補強工事(地盤調査結果により)・土地購入関連費用・門併工事・家具電化製品・その他諸経費などは本体価格には含まれません。建築地の諸条件および建築時期により別途費用が発生する場合があります。

  • MUKU BOX
  • MUKU FAMILIA
  • MUKU GREEN GAUGE
  • MUKU SIMPLE STYLE
  • MUKU NORTH STYLE
  • MUKU PASSIVE HOUSE
  • MUKU SKIP×2 HOUSE
  • MUKU SUNPATIO
  • MUKU SURFERS STYLE
  • MUKU GRAND

ライフスタイルハウスのカタログ
セットを無料でプレゼント

セレクト型注文住宅『ライフスタイルハウス』のプランバリエーションや価格を詳しく知りたい方、無垢スタイルの家づくりを詳しく知りたい方は無垢スタイル建築設計のカタログ・資料をお問い合わせフォームよりご請求ください。

Contact

各種お問い合わせ